Offers in excess of £900,000

Calculate your mortgage repayments

0 bedroom Block of Apartments Sold STC

Gowrie Road, London, SW11 5NR

  • Block of Apartments

Key Features

  • Council Tax Band: D
  • Excellent Investment Opportunity
  • Ground Floor One-Bed Flat
  • First Floor One-Bed Flat
  • Private Garden On Ground Floor
  • Potential To Extend In Loft
  • In Need Of Modernisation
  • Freehold Property
  • Close To Clapham Common And Battersea Park

Description

Nestled in the desirable area of Gowrie Road, London, SW11 5NR, this freehold block of flats presents a unique opportunity for both investors and homeowners alike. Spanning an impressive 1,102 square feet, the property comprises two well-proportioned one-bedroom flats, one located on the ground floor and the other on the first floor.

The ground floor flat boasts the added benefit of a private garden, providing a tranquil outdoor space perfect for relaxation or entertaining. This feature is particularly appealing in the bustling city, offering a slice of nature right at your doorstep.

While the property is in need of modernisation, it presents a blank canvas for those looking to put their personal touch on their living space. Additionally, there is potential to extend into the loft, allowing for further development and enhancement of the property, which could significantly increase its value.

This block of flats is ideally situated, providing easy access to local amenities, transport links, and the vibrant culture that London has to offer. Whether you are looking to invest or create your dream home, this property offers a wealth of possibilities in a sought-after location. Do not miss the chance to explore the potential that this property holds.


Location


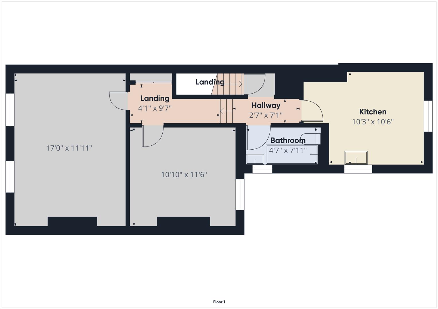
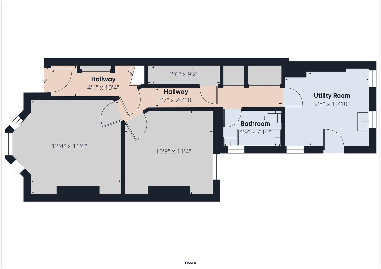
Floorplan

Floorplan Floorplan Floorplan

EPC

EPC for Gowrie Road, London, SW11 5NR

Video Tour


*This mortgage calculator is provided for general information purposes only. It's intended to provide you with an estimate of your potential mortgage payments and does not constitute an offer of finance or advice. The calculations are based on the information you provide and do not take into account your individual needs and circumstances.

The calculator does not include all the costs you will need to pay when taking out a mortgage. Your actual mortgage payments may be higher or lower than the estimates provided by this calculator. The interest rates used in the calculations are subject to change and may not reflect the actual rates available in the market.

Please note that the calculator does not consider changes in interest rates over time, early repayment charges, or any other fees and charges that may apply to your mortgage. You should always seek professional advice before making any financial decisions.

Remember, your home may be repossessed if you do not keep up repayments on your mortgage.

Calculate Your Stamp Duty
£
Results
Stamp Duty To Pay:
Effective Rate:
Tax Band % Taxable Sum Tax

£ 0
£ 0

Your estimated gross rental yield would be:

0.00%
Share this property